FR +33 9 70 73 49 24 – US +1 917 746 8056

Y29udGFjdEA1NnBhcmlzLmNvbQ==

Arc de Triomphe View Apartment

Arc de Triomphe View Apartment

€ 2,350,000

3 bed, 2 bath

75116 - 2nd floor - 1,053 sq. ft.

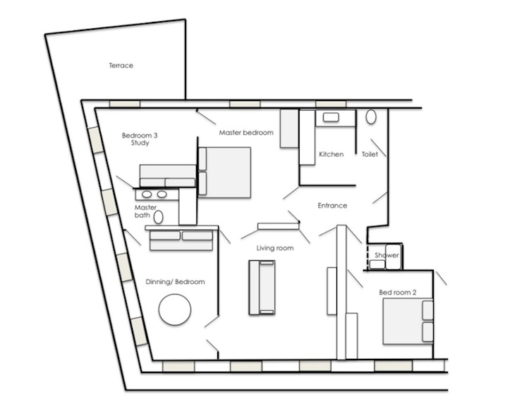
Discover a stunning Arc de Triomphe view apartment with a terrace and balconies. The air conditioned 2/3 bedroom, 2 bathroom corner property sits on the second-floor with elevator of a Haussmann-era building. In Paris' prestigious northern 16th district, it lies just steps away from the Champs Élysées and the Golden Triangle.

Fully renovated with high-quality materials, the elegant property combines Parisian charm with modern comforts. The corner dining room with a balcony overlooks the Arc de Triomphe, providing stunning views both day and night, and the terrace provides ample space for outdoor dining.

With 12 windows lining three sides of the property, there is an abundance of natural sunlight from triple exposure. Most rooms feature tall windows leading onto the 195 sq. foot balcony, which can accommodate a bistro table and plenty of greenery, all while offering an iconic monument view. The 150 sq. ft. terrace, a rare feature in a Haussmannian building, offers additional outdoor space for relaxing or entertaining.

Traditional Parisian elements abound, including French doors, high ceilings, floor-to-ceiling windows, herringbone hardwood flooring throughout, ornate molding, chandeliers, and a fireplace.

The master bedroom offers access to a full bath, shared with the third bedroom. The second bedroom has an en-suite bathroom and separate WC, and the third bedroom, which opens onto the apartment’s terrace, can also serve as an office. A spacious entry hall provides access to the separate, fully equipped eat-in kitchen, and a basement storage unit is included in the sale.

Located in a prestigious residential neighborhood, the area is lively and offers a variety of restaurants and cafés. Cross place Charles de Gaulle to access everything the bustling Champs-Elysées area has to offer, from fashionable shops to cinemas. You will also find fine dining and luxury hotels nearby. Public transportation links here can take you all over the city and beyond.

This rare Arc de Triomphe view apartment with terraces, balconies, and air conditioning makes an exceptional primary residence, pied-à-terre, or rental investment. Experience Parisian elegance and modern luxury in this beautiful property.

Floor Plan

Location

Apartment Facts

Size (Carrez)
1,053sq. ft.
Floor level
2nd Floor (FR)
Number of Bedrooms
2-3
Number of Bathrooms
2
WCs
2
Heating
Individual Gas
Hot water
Individual Gas
Kitchen
Separate, fully equipped
Included in this Sale
Basement storage unit
Features
Hardwood floors, molding, fireplace, terrace, balcony
General Condition
Very Good
DPE
D
GES
D
Air conditioning
Yes

Building Facts

Intercom
Yes
Door Code
Yes
Number of lots
37
Lawsuit in the co-ownership
None
General Condition
Good
Elevator
Yes

Taxes & Fees

Building Charges
€312/ month
Property tax
1,561 €
Agency fees included in the asking price
Paid by seller
Mandate Number
441

Interested in this property?

Your message was sent successfully. Thanks.