FR +33 9 70 73 49 24 – US +1 917 746 8056

Y29udGFjdEA1NnBhcmlzLmNvbQ==

Musée d'Orsay 1 Bed

Musée d'Orsay 1 Bed

€ 1,100,000

1 bed, 1 bath

75007 - 3rd floor - 615 sq. ft.

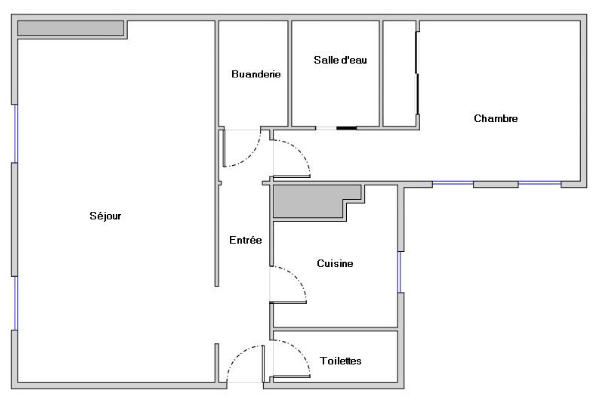
Discover this Musée d’Orsay 1 bed 1.5 bath apartment nestled in the coveted antique dealers’ area of Paris’ 7th district. On one of its most sought-after streets, the turnkey property sits on the third floor of a well-kept Haussmann era building with elevator. 

Its tasteful and thorough renovation makes reference to the classic construction style, and features a decorative fireplace, French windows, hardwood flooring and original molding. The sunny quiet floor through apartment also benefits from triple exposure.

An entry hall leads to the spacious living/dining area overlooking a quiet courtyard.

The bedroom offers an ensuite bath with shower and spacious built-in closets.
A rare find in a one bedroom, enjoy a powder room and a separate laundry room, maximizing convenience.

Fully equipped with modern appliances and ample storage, the kitchen offers a peaceful courtyard view. Amenities include a dishwasher, stove, microwave and full-size refrigerator.

Explore the charm and convenience of living near the many shops, restaurants and cafés on the rue du Bac. With Saint-Germain-des-Prés in walking distance, and public transportation nearby, the property offers both tranquility and accessibility.

This move-in ready 1 bed haven near the Musée d’Orsay makes an excellent pied-à-terre or primary residence in one of the best central Left Bank locations.

Floor Plan

Location

Apartment Facts

Size (Carrez)
615 sq. ft.
Floor level
3rd Floor (FR)
Number of Bedrooms
1
Number of Bathrooms
1.5
WCs
2
Heating
Individual gas
Hot water
Individual gas
Kitchen
Separate, fully equipped
Features
10ft ceilings, hard wood floors, molding, marble mantlepiece
General Condition
Excellent
DPE
F
GES
F
Air conditioning
No

Building Facts

"Concierge"
Yes
Intercom
Yes
Door Code
Yes
Number of lots
56
Lawsuit in the co-ownership
None
General Condition
Excellent
Elevator
Yes

Taxes & Fees

Building Charges
€ 143/ month
Property tax
€ 875/ year
Agency fees included in the asking price
Paid by seller
Mandate Number
420

Interested in this property?

Your message was sent successfully. Thanks.