FR +33 9 70 73 49 24 – US +1 917 746 8056

Y29udGFjdEA1NnBhcmlzLmNvbQ==

Saint-Germain

Saint-Germain

SOLD

2 bed, 2 bath

75006- 5th floor without elevator – 85.66m2

This sunny air-conditioned apartment sits on one of the most sought-after streets in the heart of Saint-Germain-des-Prés. Fully renovated, the two bed two bath is on the fifth floor without elevator of a 19th century building. The Seine and the Place Saint-Germain-des-Prés are both just minutes away.

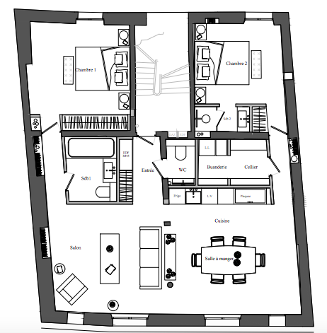
Renovation of the 925 sq. ft. property preserved original elements such as beamed ceilings, French windows and herringbone hardwood flooring. A large living room with open kitchen faces south and offers open views. The master suite includes a bath with WC. A second bedroom, bathroom, laundry room and powder room complete the property. And a basement storage unit is included.

This charming part of Paris’ 6th district offers well known restaurants, antique dealers, bookshops and high-end stores. Rue Jacob is home to interior design shops, while nearby rue de Buci provides a variety of specialty food shops. And multiple transport links are close by.

Its high-quality renovation, A/C and central rue Jacob location make this property an ideal pied-à-terre, primary residence or rental investment.

Floor Plan

Apartment Facts

Total Rooms:
4
Included:
Basement Storage Unit
Historic Features:
Beamed Ceilings, French Windows and Herringbone Hardwood Flooring.
Floors:
6
General Condition:
Excellent
Heating/Hot Water:
Individual
Kitchen:
American, Equipped
Bathrooms:
2
Bedrooms:
2
Floor:
5th
Size:
85.66m²

Building Facts

Elevator:
No
Suit in co-ownership:
No
Number of Lots:
24
General Condition:
Excellent
Digicode:
Yes
Concierge
No
Building style:
19th century

Taxes & Fees

Amount of agency fees:
4% (mandate n° 325)
Agency fees:
paid by seller
Price before agency fees:
€ 1 430 400
Price including agency fees:
€ 1 490 000
Property tax (fonciere):
€ 1 108
Quarterly building fees:
€ 621